Create Your First Project
Start adding your projects to your portfolio. Click on "Manage Projects" to get started
Ronald McDonald huis Emma
OPDRACHT VAN
Heyligers Architects
JAAR
2024
LOCATIE
Amsterdam
ROL
Interieurarchitect
STATUS
Afgerond
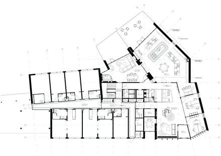
In dienst van Heyligers Architect heb ik als interieurarchitect meegewerkt aan het ontwerp voor het nieuwe Ronald McDonald huis Emma in gelegd naast het Amsterdam UMC.
Een aantrekkelijke, toegangelijke, open maar ook beschutte ruimte voor onze algemene functies, dat was de vraag van Ronald McDonald huis Emma. "Onze bewoners moeten zich hier thuis voelen in de vaak nare periode in hun leven". Van een gesloten gebouw hebben wij een open, transparant en huislijke omgeving gemaakt waar je eenmaal binnen genoeg plekjes hebt om je terug te trekken met je partner of gezin.
De nieuwbouw heeft de vorm van een ‘typisch huis’ gekregen aan de voorzijde. Aan de achterzijde splitst het volume zich in twee delen, die beide ook een huisvorm hebben gekregen. Het rechter volume is lager dan het linker, waardoor er een symbolisch ‘moeder’- en ‘kinder huisje’ vorm ontstaat. In het lagere volume is een van de woonkamers geplaatst, met uitzicht op de tuin. Ernaast is de keuken met daarboven een tweede woonkamer, beide ook gericht op de tuin.
De voor- en achter zijde zijn transparant, de zijgevel en lamellen aan de voorgevel zijn uitgevoerd in hout, dat ook op het dak wordt toepast. De transparante achtergevels zijn gericht op het zuiden en zijn daarom terugliggend geplaatst t.o.v de zijgevels zodat de lichtinval en warmtelast minimaal zal zijn. Ook zal er warmtewerend glas worden toegepast.
De nieuwe aanbouw is aan de voorzijde, door een terug liggend volume, visueel los getrokken van het logiesgedeelte. De visueel meer gesloten rechte zijgevel maakt halverwege een knik om binnen het kavel te kunnen blijven. Door een hap weg te nemen ter plaatse van deze knik ontstaat een nis waar daglicht naar binnen treedt.
Op de begane grond hebben we aan de voorzijde de entree en ontvangstruimte gecreëerd met een vide tot aan het dak. Daarnaast zijn twee kantoren gesitueerd, die worden voorzien van daglicht in de zijgevel.
Op de 1e verdieping is een multifunctionele ruimte gecreëerd voor bijeenkomsten, om te relaxen of gasten te ontvangen. Op de tweede verdieping is ruimte voor een berging en de installatieruimte, en is tevens het appartement van de beheerder gesitueerd.
Om het bestaande volume met het nieuwe volume te verbinden is een nieuwe trap geplaatst, ook is een nieuwe lift voorzien. De logiesruimte zijn brandwerend gescheiden van de nieuwbouw. Er is een nieuwe vluchtroute geplaatst in het logiesdeel.


























